The Grove
Saint Therese of Woodbury features a broad selection of one- and two-bedroom senior apartments up to 1,030 square feet for assisted living. Each inviting option provides an assortment of included amenities and multiple levels of personal care.
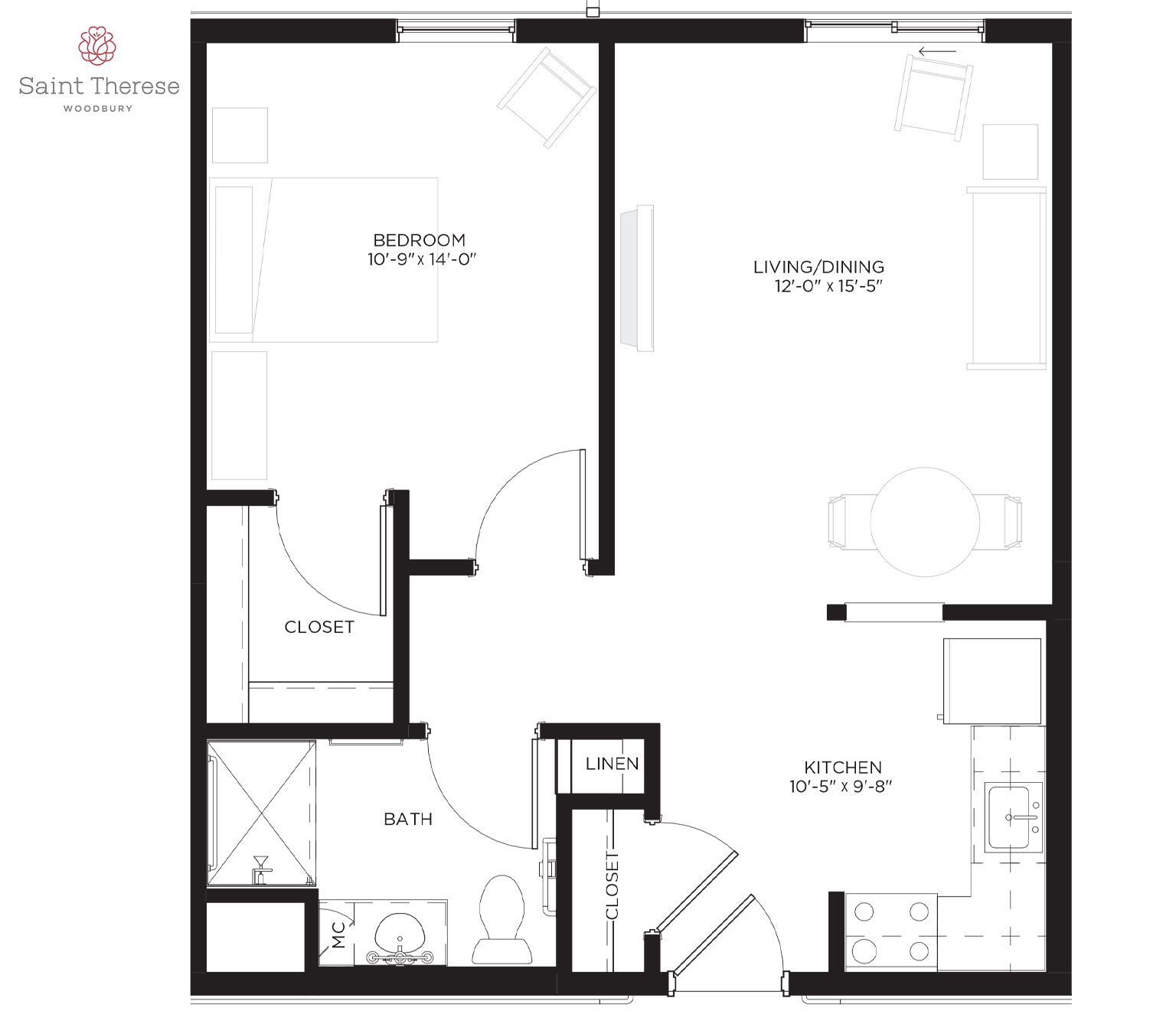
One Bedroom Apartments
VIEW LARGER IMAGE
Balsam Floor Plan
1 Bed
- 1 Bed
- 1 Bath
- 516 sq. ft.
FLOOR PLAN DETAILS
- Kitchen
- Living/Dining (14 x 12 ft)
- Bedroom (10 x 11 ft)
- Bath with linen closet
VIEW LARGER IMAGE
Cherry Floor Plan
1 Bed
- 1 Bed
- 1 Bath
- 516 sq. ft.
FLOOR PLAN DETAILS
- Kitchen
- Living/Dining (14 x 12 ft)
- Bedroom (10 x 11 ft)
- Bath with linen closet
VIEW LARGER IMAGE
Cypress Floor Plan
1 Bed
- 1 Bed
- 1 Bath
- 530 sq. ft.
FLOOR PLAN DETAILS
- Kitchen (6 x 9 ft)
- Living/Dining Room (11 x 15 ft)
- Bedroom (9 x 13 ft)
- Bath with linen closet
VIEW LARGER IMAGE
Juniper Floor Plan
1 Bed
- 1 Bed
- 1 Bath
- 569 sq. ft.
FLOOR PLAN DETAILS
- Kitchen (7 x 11 ft)
- Living/Dining Room (9 x 13 ft)
- Bedroom with walk-in closet (10 x 11 ft)
- Bath with linen closet
VIEW LARGER IMAGE
Lilac Floor Plan
1 Bed
- 1 Bed
- 1 Bath
- 571 sq. ft.
FLOOR PLAN DETAILS
- Walk-in Entry Closet
- Kitchen (7 x 9 ft)
- Living/Dining Room (10 x 18 ft)
- Bedroom (12 x 14 ft)
- Bath with linen closet
VIEW LARGER IMAGE
Magnolia Floor Plan
1 Bed
- 1 Bed
- 1 Bath
- 596 sq. ft.
FLOOR PLAN DETAILS
- Kitchen (7 x 11 ft)
- Living/Dining Room (13 x 17 ft)
- Bedroom with walk-in closet (12 x 9 ft)
- Bath with linen closet
VIEW LARGER IMAGE
Linden Floor Plan
1 Bed
- 1 Bed
- 1 Bath
- 634 sq. ft.
FLOOR PLAN DETAILS
- Kitchen (10 x 9 ft)
- Living/Dining Room (12 x 15 ft)
- Bedroom with walk-in closet (9 x 14 ft)
- Bath with linen closet
VIEW LARGER IMAGE
Poplar Floor Plan
1 Bed + Bay window
- 1 Bed
- 1 Bath
- 654 sq. ft.
FLOOR PLAN DETAILS
- Kitchen (9 x 10 ft)
- Living/Dining Room (18 x 12 ft)
- Bedroom with walk-in closet (14 x 10 ft)
- Bath with linen closet
VIEW LARGER IMAGE
Elm Floor Plan
1 Bed
- 1 Bed
- 1 Bath
- 665 sq. ft.
FLOOR PLAN DETAILS
- Living/Dining Room (15 x 13 ft)
- Bedroom with walk-in closet (11 x 13 ft)
- Bath with linen closet
- Laundry in apartment
VIEW LARGER IMAGE
Redwood Floor Plan
1 Bed + Curved window wall
- 1 Bed
- 1 Bath
- 686 sq. ft.
FLOOR PLAN DETAILS
- Kitchen (12 x 9 ft)
- Living/Dining Room (14 x 18 ft)
- Bedroom with walk-through closet (10 x 11 ft)
- Bath with linen closet
VIEW LARGER IMAGE
Hawthorn Floor Plan
1 Bed
- 1 Bed
- 1 Bath
- 691 sq. ft.
FLOOR PLAN DETAILS
- Kitchen (9 x 11 ft)
- Living/Dining Room (15 x 11 ft)
- Bedroom with walk-in closet (10 x 11 ft)
- Bath with linen closet
VIEW LARGER IMAGE
Douglas Fir Floor Plan
1 Bed
- 1 Bed
- 1 Bath
- 693 sq. ft.
FLOOR PLAN DETAILS
- Living/Dining Room (12 x 14 ft)
- Bedroom with walk-in closet (11 x 12 ft)
- Bath with linen closet
VIEW LARGER IMAGE
Mulberry Floor Plan
1 Bed
- 1 Bed
- 1 Bath
- 703 sq. ft.
FLOOR PLAN DETAILS
- Kitchen/Dining Room (11 x 13 ft)
- Living Room (12 x 14 ft)
- Bedroom with walk-in closet (11 x 12 ft)
- Bath with linen closet
Two Bedroom Apartments
VIEW LARGER IMAGE
Palm Floor Plan
2 Bed
- 2 Bed
- 1 Bath
- 836 sq. ft.
FLOOR PLAN DETAILS
- Kitchen/Dining Room (14 x 11 ft)
- Living Room (13 x 12 ft)
- Master Bedroom with walk-in closet (11 x 11 ft)
- Second Bedroom (11 x 10 ft)
- Bath with linen closet
- Laundry in apartment
VIEW LARGER IMAGE
Chestnut Floor Plan
2 Bed
- 2 Bed
- 1.5 Bath
- 1,030 sq. ft.
FLOOR PLAN DETAILS
- Living/Dining Room (17 x 19 ft)
- Master Bedroom (13 x 9 ft)
- Master Bath with linen closet
- Second Bedroom (11 x 11 ft)
- Powder Room
- Laundry Room
Find your place in the Saint Therese of Woodbury community.
View features and amenities and explore the Community Calendar.
Saint Therese Locations

Saint Therese of Oxbow Lake
BROOKLYN PARK, MN
Independent Living, Assisted Living, Long-Term Care, Transitional Care, Memory Care, Palliative & Hospice Care, Rehabilitation, and More!

Saint Therese of Woodbury
WOODBURY, MN
Independent Living, Assisted Living, Long-Term Care, Transitional Care, Memory Care, Palliative & Hospice Care, Rehabilitation, and More!
Saint Therese at St. Odilia
SHOREVIEW, MN
Palliative & Hospice Care, Pastoral Care, and Rehabilitation.
Saint Therese of Corcoran
CORCORAN, MN
Independent Living, Assisted Living, Memory Care, Rehabilitation, and More!
Saint Therese at IHM Senior Living
MONROE, MI
Independent Living, Assisted Living, Memory Care, Rehabilitation, and More!
St. Mary of the Woods
AVON, OH
Independent Living, Assisted Living, Long-Term Care, Transitional Care, Memory Care, Palliative & Hospice Care, Rehabilitation, and More!
Saint Therese of Oxbow Lake
BROOKLYN PARK, MN
Independent Living, Assisted Living, Long-Term Care, Transitional Care, Memory Care, Palliative & Hospice Care, Rehabilitation, and More!
Saint Therese of Woodbury
WOODBURY, MN
Independent Living, Assisted Living, Long-Term Care, Transitional Care, Memory Care, Palliative & Hospice Care, Rehabilitation, and More!





















