Assisted Living Floor Plans
Saint Therese Of Corcoran
Assisted Living Your Way
Our spacious, well-appointed assisted living apartments for individuals or couples are available in one- or two-bedroom floor plans. Features include a kitchen with standard appliances, walk-in shower and other amenities for comfort and convenience. Care plans may include medication management and health monitoring, assistance with daily activities, such as dressing or bathing, and an emergency pendant for added safety and assurance.
Studio & One Bedroom Apartments
VIEW LARGER IMAGE
Andalusian Floor Plan
Studio
- 1 Bath
- Balcony
- 478 sq. ft.
FLOOR PLAN DETAILS
- Kitchen (8 x 11 ft)
- Living area (9 x 10 ft)
- Sleeping Area (10 x 12 ft)
- Walk-in Closet (5 x 4 ft)
- Bath (8 x 9 ft)
VIEW LARGER IMAGE
Fjord Floor Plan
1 Bed
- 1 Bed
- 1 Bath
- 565-623 sq. ft.
FLOOR PLAN DETAILS
- Kitchen (12 x 11 ft)
- Living/Dining Room (15 x 14 ft)
- Bedroom (11 x 11 ft)
- Walk-in Closet (5 x 5 ft)
- Bath (9 x 10 ft)
VIEW LARGER IMAGE
Hanoverian Floor Plan
1 Bed
- 1 Bed
- 1 Bath
- 749 sq. ft.
FLOOR PLAN DETAILS
- Kitchen (13 x 8 ft)
- Living/Dining Room (16 x 13 ft)
- Bedroom (11 x 11 ft)
- Walk-in Closet (7 x 6 ft)
- Bath (9 x 8 ft)
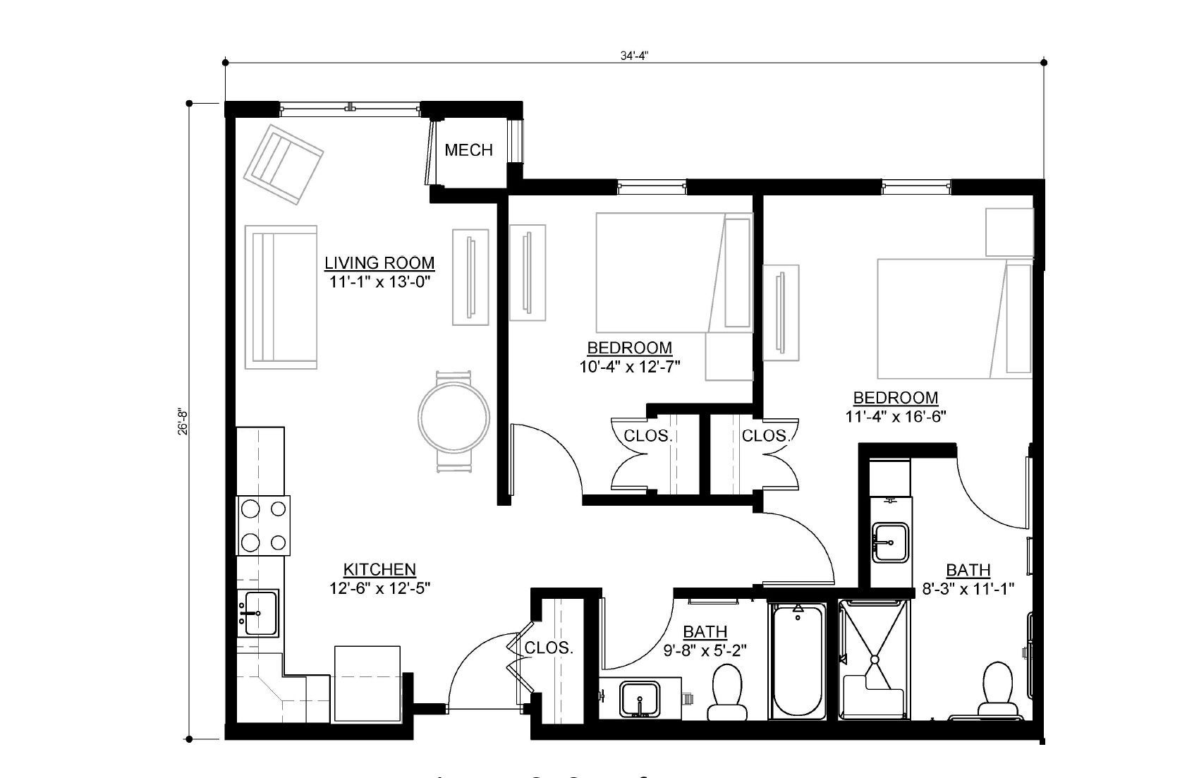
Two Bedroom Apartments
VIEW LARGER IMAGE
Pinto Floor Plan
2 Bed
- 2 Bed
- 2 Bath
- 836 sq. ft.
FLOOR PLAN DETAILS
- Kitchen (12 x 12 ft)
- Living/Dining Room (11 x 13 ft)
- Master Bedroom (11 x 16 ft)
- Master Bath (8 x 11 ft)
- Second Bedroom with tub (10 x 12 ft)
- Second Bathroom (9 x 5 ft)
Find your place in the Saint Therese of Corcoran community.
View features and amenities and explore the Community Calendar.
Saint Therese Locations

Saint Therese of Oxbow Lake
BROOKLYN PARK, MN
Independent Living, Assisted Living, Long-Term Care, Transitional Care, Memory Care, Palliative & Hospice Care, Rehabilitation, and More!

Saint Therese of Woodbury
WOODBURY, MN
Independent Living, Assisted Living, Long-Term Care, Transitional Care, Memory Care, Palliative & Hospice Care, Rehabilitation, and More!
Saint Therese at St. Odilia
SHOREVIEW, MN
Palliative & Hospice Care, Pastoral Care, and Rehabilitation.
Saint Therese of Corcoran
CORCORAN, MN
Independent Living, Assisted Living, Memory Care, Rehabilitation, and More!
Saint Therese at IHM Senior Living
MONROE, MI
Independent Living, Assisted Living, Memory Care, Rehabilitation, and More!
St. Mary of the Woods
AVON, OH
Independent Living, Assisted Living, Long-Term Care, Transitional Care, Memory Care, Palliative & Hospice Care, Rehabilitation, and More!
Saint Therese of Oxbow Lake
BROOKLYN PARK, MN
Independent Living, Assisted Living, Long-Term Care, Transitional Care, Memory Care, Palliative & Hospice Care, Rehabilitation, and More!
Saint Therese of Woodbury
WOODBURY, MN
Independent Living, Assisted Living, Long-Term Care, Transitional Care, Memory Care, Palliative & Hospice Care, Rehabilitation, and More!










