Independent Living Floor Plans
Saint Therese at St Mary of the Woods
A Welcome Change of Place
Celebrate a retirement lifestyle of activity and independence that affords you the opportunity to do it all or nothing at all. Saint Therese at St. Mary of the Woods, nestled in the heart of Avon, Ohio, provides state-of-the-art amenities and services with a distinctly local touch. Our people first approach to independent living at St. Mary of the Woods provides the ideal solution for you to maximize an upscale retirement lifestyle.
One Bedroom Apartments
VIEW LARGER IMAGE
Dogwood Floor Plan
1 Bed + Sunroom
 
 - 1 Bed
- 1 Bath
- Sunroom
- 661 sq. ft.
- FLOOR PLAN DETAILS- Kitchen (7 x 6 ft)
- Living Room (11 x 10 ft)
- Dining Room (7 x 6 ft)
- Sunroom (9 x 8 ft)
- Bedroom (10 x 10 ft)
- Bath
- Stackable laundry
 
VIEW LARGER IMAGE
Mulberry Floor Plan
1 Bed + Patio
 
 - 1 Bed
- 1 Bath
- Patio
- 771 sq. ft. 
- FLOOR PLAN DETAILS- Kitchen (8 x 14 ft)
- Living/Dining Room (10 x 19 ft)
- Patio
- Bedroom with walk-in closet (10 x 16 ft)
- Bath
- Laundry onsite
 
Two Bedroom Apartments
VIEW LARGER IMAGE+
Buckeye Floor Plan
2 Bed + Patio
 
 - 2 Bed
- 2 Bath
- Patio
- 1,016 sq. ft. 
- FLOOR PLAN DETAILS- Kitchen (7 x 9 ft)
- Living/Dining Room (11 x 15 ft)
- Patio
- Master Bedroom with Walk-in Closet (11 x 14 ft)
- Master Bath
- Second Bed/Den (10 x 13 ft)
- Second Bath
- Laundry
- Second Bath (10 x 5 ft)
- Laundry
 
VIEW LARGER IMAGE
Willow Floor Plan
2 Bed + Balcony/Patio
 
 - 2 Bed
- 2 Bath
- Balcony/Patio
- 1,043 sq. ft.
- FLOOR PLAN DETAILS- Kitchen (7 x 9 ft)
- Living/Dining Room (12 x 10 ft)
- Balcony/Patio
- Master Bedroom with Walk-in Closet (10 x 16 ft)
- Master Bath
- Second Bed (10 x 11 ft)
- Second Bath
- Laundry
 
VIEW LARGER IMAGE
Elm Floor Plan
2 Bed + Sunroom
 
 - 2 Bed
- 2 Bath
- Sunroom
- 1,150 sq. ft.
- FLOOR PLAN DETAILS- Kitchen with island (10 x 9 ft)
- Living/Dining Room (12 x 17 ft)
- Sunroom
- Master Bedroom with Walk-in Closet(10 x 16 ft)
- Master Bath
- Second Bed (10 x 11 ft)
- Second Bath
- Stackable Laundry
 
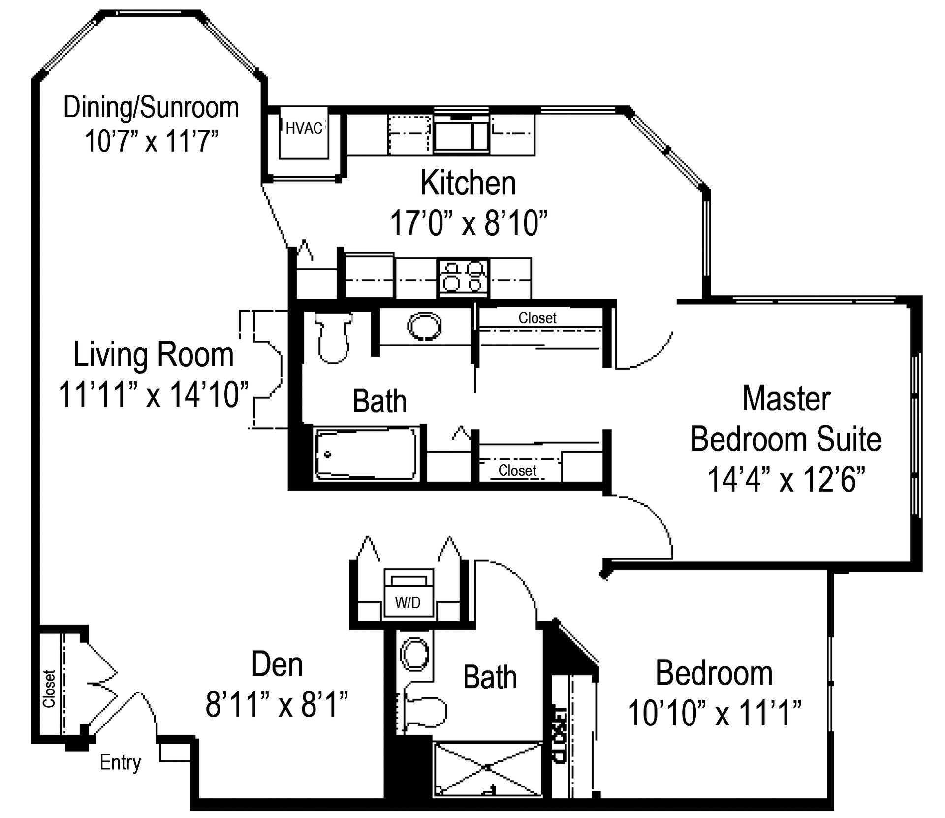
VIEW LARGER IMAGE+
ButtonMagnolia Floor Plan
2 Bed + Sunroom
 
 - 2 Bed
- 2 Bath
- Sunroom
- 1,305 sq. ft.
- FLOOR PLAN DETAILS- Kitchen (17 x 8 ft)
- Dining Room/Sunroom (10 x 11 ft)
- Living Room (11 x 14 ft)
- Den (8 x 8 ft)
- Master Bedroom with Walk-in Closet (14 x 12 ft)
- Master Bath
- Second Bed (10 x 11 ft)
- Second Bath
- Stackable Laundry
 
VIEW LARGER IMAGE+
ButtonRedwood Floor Plan
2 Bed + Balcony/Patio
 
 - 2 Bed
- 2 Bath
- Balcony/Patio
- 1,327-1,447 sq. ft.
- FLOOR PLAN DETAILS- Kitchen (17 x 8 ft)
- Living/Dining Room (11 x 14 ft)
- Balcony/Patio
- Master Bedroom with Walk-in Closet (14 x 12 ft)
- Master Bath
- Den (8 x 8 ft)
- Second Bed (10 x 10 ft)
- Second Bath
- Stackable Laundry
 
VIEW LARGER IMAGE
Linden Floor Plan
2 Bed + Patio
 
 - 2 Bed
- 2 Bath
- Patio
- 1,542 sq. ft.
- FLOOR PLAN DETAILS- Kitchen with island (8 x 10 ft)
- Living Room (14 x 13 ft)
- Dining Room (14 x 9 ft)
- Study (8 x 9 ft)
- Patio
- Master Bedroom with Walk-in Closet (16 x 10 ft)
- Master Bath
- Second Bed with Walk-in Closet (10 x 16 ft)
- Second Bath
- Laundry
 
Find your place in the St. Mary of the Woods community.
View features and amenities and explore the Community Calendar. Contact us today to schedule a tour.
Saint Therese Locations

Saint Therese of Oxbow Lake
BROOKLYN PARK, MN
Independent Living, Assisted Living, Long-Term Care, Transitional Care, Memory Care, Palliative & Hospice Care, Rehabilitation, and More!

Saint Therese of Woodbury
WOODBURY, MN
Independent Living, Assisted Living, Long-Term Care, Transitional Care, Memory Care, Palliative & Hospice Care, Rehabilitation, and More!
Saint Therese at St. Odilia
SHOREVIEW, MN
Palliative & Hospice Care, Pastoral Care, and Rehabilitation.
Saint Therese of Corcoran
CORCORAN, MN
Independent Living, Assisted Living, Memory Care, Rehabilitation, and More!
Saint Therese at IHM Senior Living
MONROE, MI
Independent Living, Assisted Living, Memory Care, Rehabilitation, and More!
St. Mary of the Woods
AVON, OH
Independent Living, Assisted Living, Long-Term Care, Transitional Care, Memory Care, Palliative & Hospice Care, Rehabilitation, and More!
Saint Therese of Oxbow Lake
BROOKLYN PARK, MN
Independent Living, Assisted Living, Long-Term Care, Transitional Care, Memory Care, Palliative & Hospice Care, Rehabilitation, and More!
Saint Therese of Woodbury
WOODBURY, MN
Independent Living, Assisted Living, Long-Term Care, Transitional Care, Memory Care, Palliative & Hospice Care, Rehabilitation, and More!
















